x
Home
Services
MEP Design Review & Oversight
Technical Peer Review & Code Alignment for MEP Firms
Full MEP, Fire, Energy & PV Design Services
T24
Architectural Drafting
Pricing
About Us
FAQ
Projects
MEP
Architectural Design
Blogs
Infographics
ARCHITECTS
DEVELOPERS
MEP
Contact Us
Get Quote
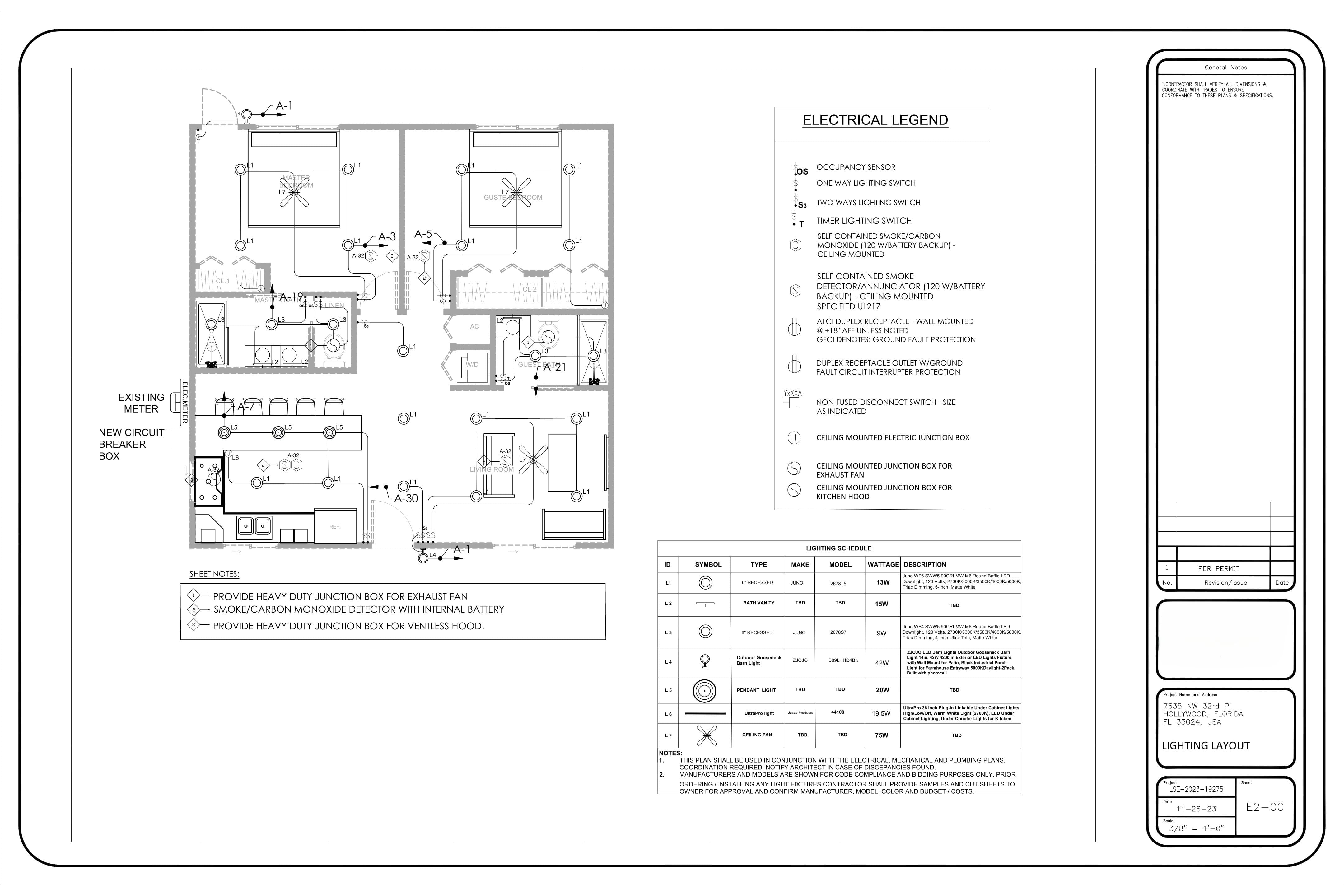
7635 NW 32nd
Home
projects
7635 NW 32nd
Project Name
7635 NW 32nd
Project Type
Residential
Project Address
7635 NW 32rd PL Hollywood Florida 33024
Project Images