x
Home
Services
MEP Design Review & Oversight
Technical Peer Review & Code Alignment for MEP Firms
Full MEP, Fire, Energy & PV Design Services
T24
Architectural Drafting
Pricing
About Us
FAQ
Projects
MEP
Architectural Design
Blogs
Infographics
ARCHITECTS
DEVELOPERS
MEP
Contact Us
Get Quote
Project 58
Home
projects
Project 58
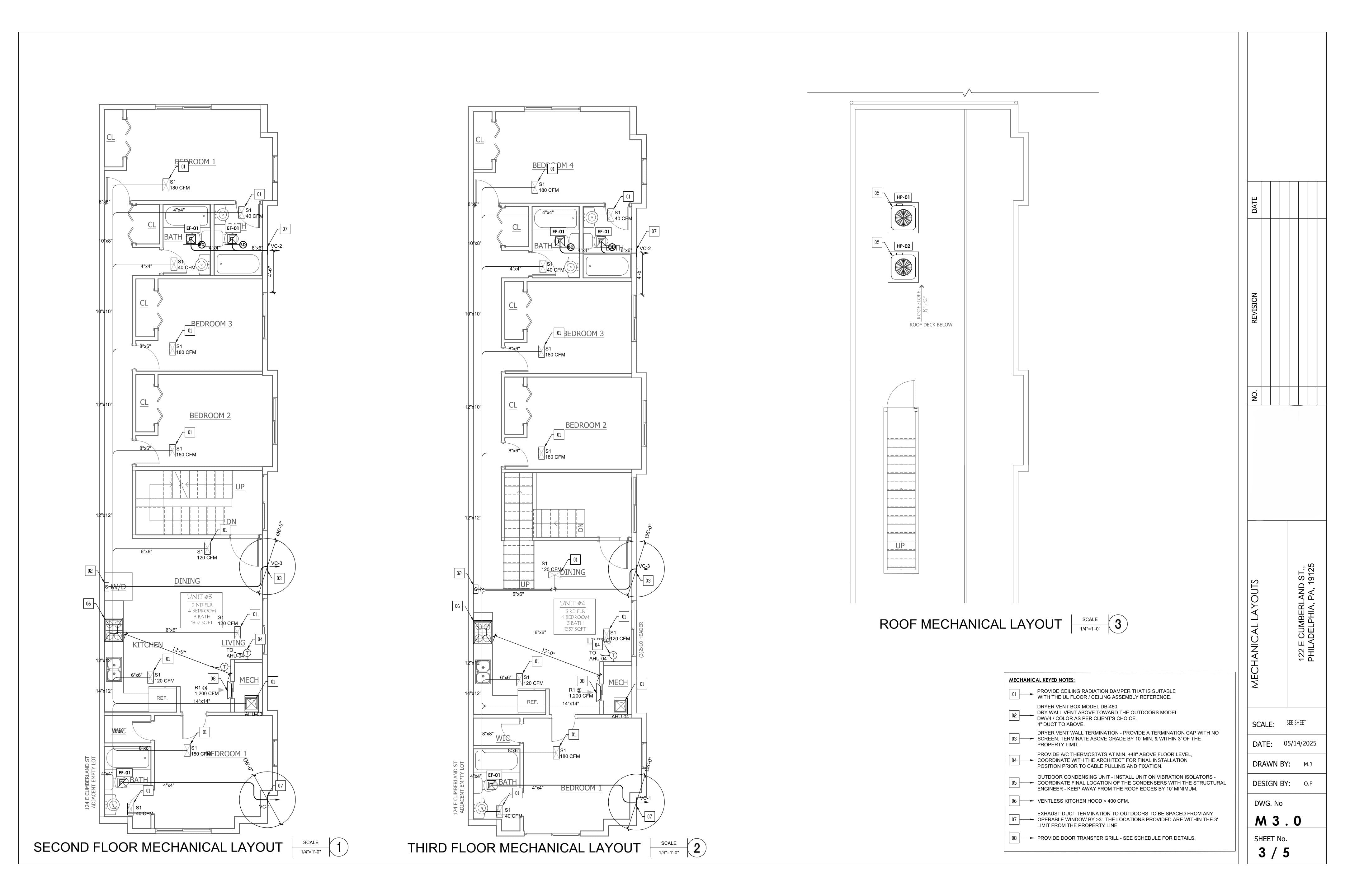
Project Name
Project 58
Project Type
Residential
Project Address
122 E CUMBERLAND ST., PHILADELPHIA, PA, 19125
Project Images