x
Home
Services
MEP Design Review & Oversight
Technical Peer Review & Code Alignment for MEP Firms
Full MEP, Fire, Energy & PV Design Services
T24
Architectural Drafting
Pricing
About Us
FAQ
Projects
MEP
Architectural Design
Blogs
Infographics
ARCHITECTS
DEVELOPERS
MEP
Contact Us
Get Quote
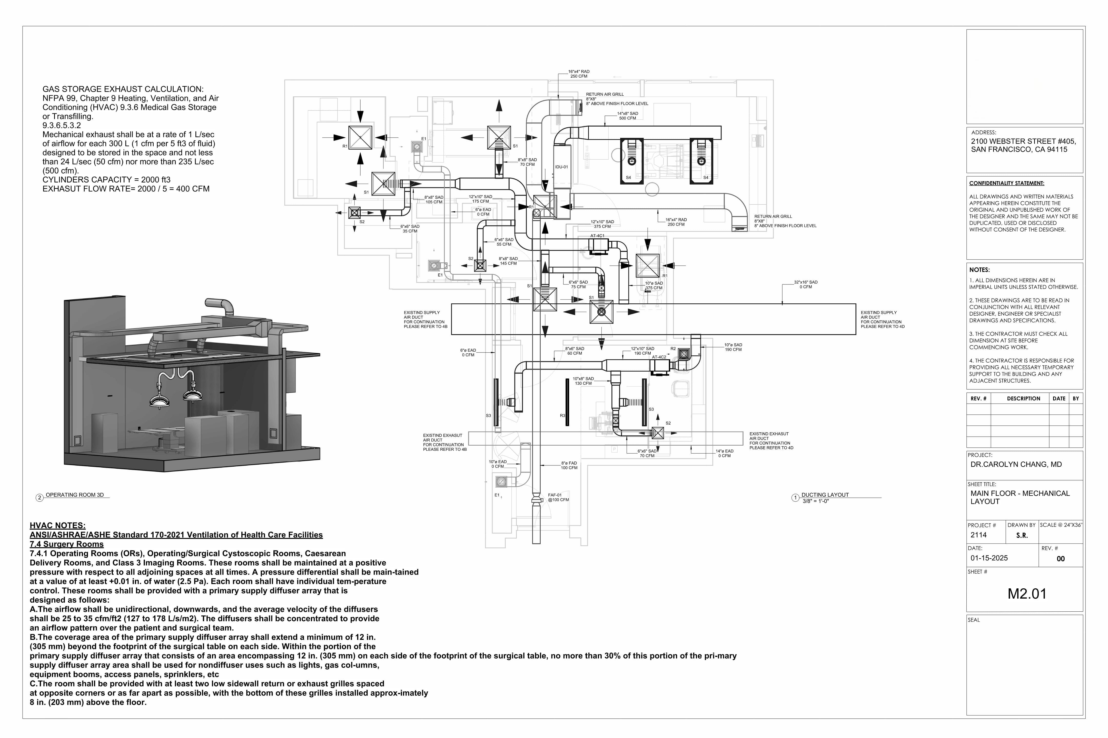
Dr. Carolyn
Home
projects
Dr. Carolyn
Project Name
Dr. Carolyn
Project Type
HealthCare
Project Address
2100 WEBSTER STREET
Project Images