x
Home
Services
MEP Design Review & Oversight
Technical Peer Review & Code Alignment for MEP Firms
Full MEP, Fire, Energy & PV Design Services
T24
Architectural Drafting
Pricing
About Us
FAQ
Projects
MEP
Architectural Design
Blogs
Infographics
ARCHITECTS
DEVELOPERS
MEP
Contact Us
Get Quote
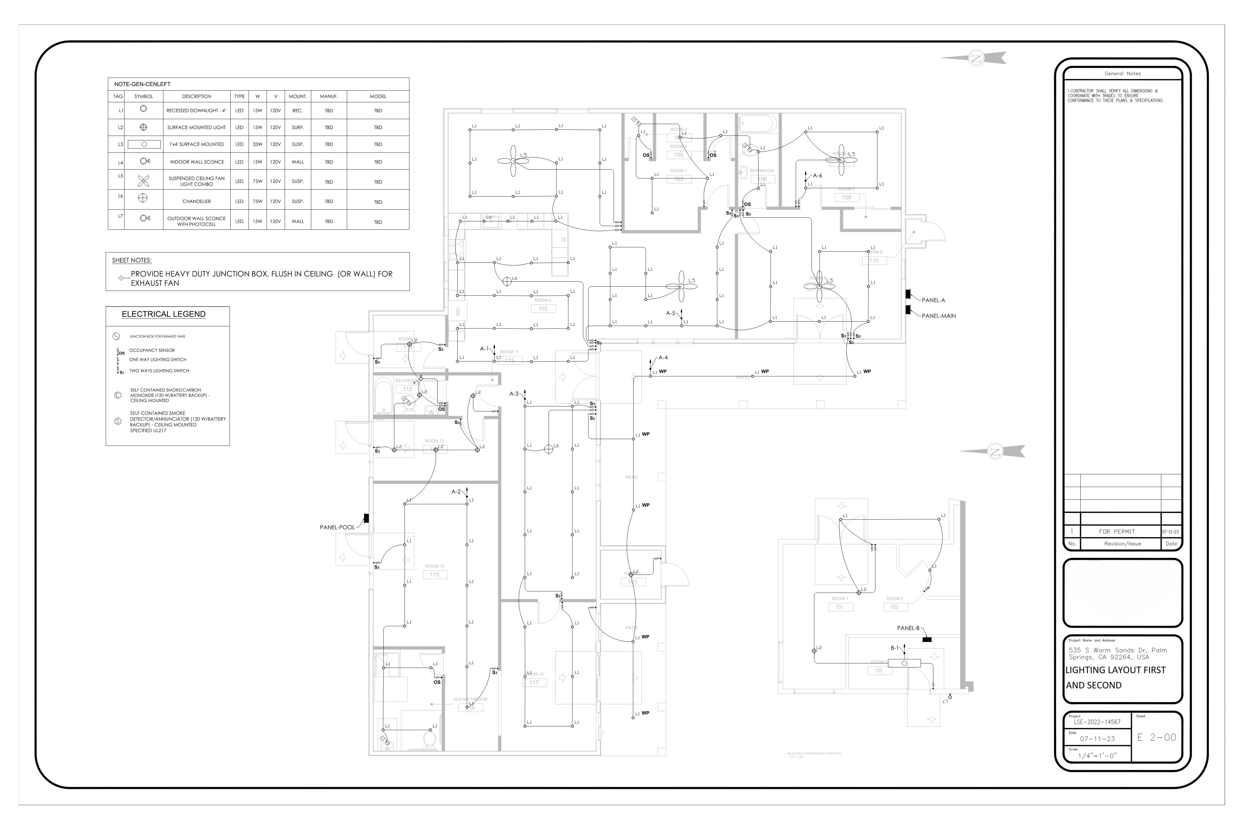
535 S Warm Sands Dr
Home
projects
535 S Warm Sands Dr
Project Name
535 S Warm Sands Dr
Project Type
Commercial
Project Address
535 S Warm Sands Dr Palm Springs CA 92264
Project Images